Te koop : Rozenkransstraat 12 te Venlo |
Vraagprijs: €475.000 k.k. |
Ben jij op zoek naar een instapklare woning waar energiezuinigheid en luxe samenkomen? Dan is dit je kans! Deze jaren ’30 woning ligt in een geliefde, gezellige wijk en biedt een bijzondere extra: een bioscoop in je eigen huis.
- Vanaf 2010 is de woning volledig gerenoveerd en gemoderniseerd. Dankzij een energielabel B en de volledige isolatie geniet je van een prettig woonklimaat én lage energiekosten.
- 4 comfortabele (slaap-)kamers waarvan 1 met dakterras.
- De luxe badkamer voelt als een wellnessruimte.
- Alle verdiepingen zijn voorzien van een airco.
- Buiten wacht een verzorgde tuin met vrije achterom, waar je in alle privacy kunt genieten.
Kortom: een instapklare woning vol comfort en verrassende extra’s; gelegen in een populaire wijk waar je je meteen thuis voelt!
Indeling
Kelder:
- Een praktische provisiekelder (ca. 12m2) met stahoogte biedt volop ruimte voor opslag en extra spullen.
Begane grond:
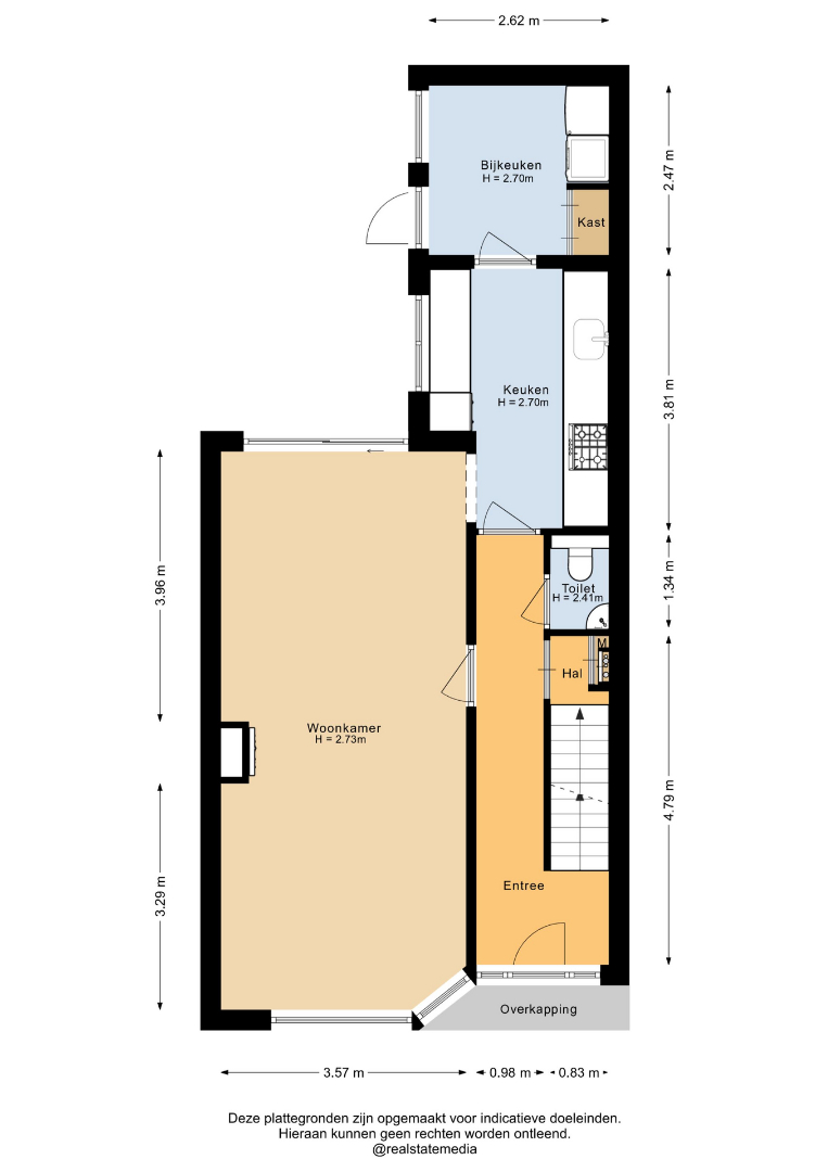
- Via de ruime hal met trapopgang betreed je de woning. Hier bevindt zich een separaat, volledig betegeld toilet.
- De sfeervolle woonkamer (ca. 29m2) is een heerlijke leefruimte met een warme houtkachel en een prachtige massief eikenhouten vloer, wat direct zorgt voor een luxe en huiselijke uitstraling. Tevens heeft u vanuit de woonkamer via de schuifpui directe toegang tot de tuin, waardoor het buitenleven een verlengstuk van het interieur wordt.
- De moderne keuken (ca. 9m2) is verdekt opgesteld en van alle gemakken voorzien, waaronder een oven, vaatwasser, 5-pits gasfornuis en koelkast. Aansluitend bevindt zich de bijkeuken (ca. 6,5m2) met witgoedaansluiting, bergkast en een deur naar de tuin.
- De tuin is een oase van rust, met een vrije achterom en ligging zonder achterburen. Zo geniet je van optimale privacy in een beschutte, groene buitenruimte: een rustige binnentuin aan de rand van het centrum!
Eerste verdieping:
- Op de eerste verdieping bevinden zich drie comfortabele slaapkamers (ca. 13,5m2, 13,m2 en 8m2) allen voorzien van een ruime muurkast en waarvan één directe toegang biedt tot een fijn dakterras.
- De luxe badkamer (ca.9m2) is een ware privé-wellness: vloerverwarming, royale inloopdouche, ligbad met bubbelbadfunctie en een dubbele wastafel met stijlvol meubel. Comfort, ruimte en ontspanning komen hier perfect samen.
Tweede verdieping:
- Deze verdieping is omgetoverd tot een unieke thuisbioscoop (ca. 16,5m2): een droom voor film- en serieliefhebbers!
Beleef cinema-avonden in alle comfort en privacy, gewoon thuis. Extra slaap- of hobbykamer nodig? Dan is deze ruimte eenvoudig om te bouwen tot extra kamer.
- Daarnaast is er een cv-ruimte en meerdere bergkasten, waardoor deze verdieping niet alleen bijzonder, maar ook zeer praktisch is.
Extra’s & voorzieningen
- 17 zonnepanelen
- Kunststof kozijnen met ventilatieroosters en HR++ beglazing (2019)
- Cv-ketel is op 12-01-2010 geïnstalleerd; merk ‘Nefit’; eigendom
- Grotendeels voorzien van handmatig bedienbare rolluiken
- Elektra volledig vernieuwd in 2010
- Vloerverwarming in hal, keuken en bijkeuken
- Alle verdiepingen in de woning zijn voorzien van airconditioning (ca. 2 jaar oud)
- Rechterzijde woning opnieuw gevoegd
- Door de hele woning inbouwspots met dimmers
Ligging:
Aan de gezellige Rozenkransstraat op korte afstand van buurtwinkelcentrum ‘Gelreplein’ en het centrum van Venlo, bevindt zich deze woning aan een rustig hofje. Hier woont u op loopafstand van diverse voorzieningen als: de bakker, slager, scholen en andersoortige voorzieningen. Het station, uitvalswegen en de Duitse grens liggen allemaal op korte afstand. Met een abonnement parkeert u eenvoudig voor de deur. Kortom, een perfecte combinatie van rust, gemak en uitstekende bereikbaarheid!
| Adres: | Rozenkransstraat 12 Venlo |
| Vraagprijs: | € 475.000 k.k. |
| Type: | Eengezinswoning |
| Beschikbaar vanaf: | In overleg |
| Ligging: | In woonwijk, Aan rustige weg |
| Perceeloppervlakte: | 156 m² |
| Totale woonoppervlakte: | 154 m² |
| Type constructie: | Traditioneel |
| Bouwjaar: | 1939 |
| Renovatiejaar: | 2010 |
| Inhoud: | 582 m³ |
| Bouwlagen: | 4 |
| Overige inpandige ruimte: | 12 m² |
| Gebouwgebonden buitenruimte: | 2 m² |
| Algemene staat: | Direct te aanvaarden |
| Kad. gemeente: | Venlo |
| Oppervlakte: | 156 m² |
| Kamers: | 5 |
| Slaapkamers: | 4 |
| Badkamers: | 1 |
| WC: | 2 |
| Woonkamer: | 29 m² |
| Keuken: | 9 m², Half-open keuken, Ingericht met inbouwapparatuur |
| Bijkeuken: | 7 m² |
| Berging: | Ja |
| Zolder: | 40 m² |
| Kelder: | 12 m² |
| Balkon: | 2 m² |
| Tuin: | 61,50 m² |
| Tuin breedte: | 4,5 m |
| Tuin diepte: | 13,7 m |
| Tuin oriëntatie: | Zuid-West |
| Tuin kwaliteit: | Verzorgd |
| Comfort: | Tuin |
| Snelweg: | Ja - op 2000 m tot 3000 m |
| Treinstation: | Ja - op 1000 m tot 1500 m |
| Busknooppunt: | Ja - op 1000 m tot 1500 m |
| Bushalte: | Ja - op minder dan 500 m |
| Winkel: | Ja - op minder dan 500 m |
| School: | Ja - op minder dan 500 m |
| Kinderopvang: | Ja - op minder dan 500 m |
| Bank: | Ja - op minder dan 500 m |
| Ontspanning: | Ja - op minder dan 500 m |
| Restaurant: | Ja - op 500 m tot 1000 m |
| Raamwerk: | Hardhout |
| Dak: | Zadeldak |
| Beglazing: | Dubbel, Hoogrendementsglas |
| Verwarming: | CV-ketel, Airconditioning, Vloerverw. gedeeltelijk |
| Verwarming bouwjaar: | 2010 |
| Verwarmd water: | CV-Ketel |
| Isolatie: | Volledig geïsoleerd |
| Airco: | Ja |
| Rolluiken: | Ja |
| Zonnewering: | Ja |
| Kabel: | Ja |
| Zonnepanelen: | Ja - 17 |
| Energielabel: | B |
| Geldig tot: | 26-1-2036 |