Te koop : 2e Maasveldstraat 16 te Venlo |
Vraagprijs: €469.000 k.k. |
Aan de 2e Maasveldstraat 16 in Venlo-Blerick staat een levensloopbestendige woning die je verrast vanaf het moment dat je binnenstapt. Wat een bescheiden gevel verbergt, openbaart zich achter de voordeur als een warm, sfeervol thuis vol karakter en ruimte. Elk hoekje ademt aandacht, elke kleur en elk detail vertelt een eigen verhaal: een huis dat duidelijk met liefde is bewoond én onderhouden.
- Levensloopbestendig met slaap- en badkamer op de begane grond
- Energielabel A (10 zonnepanelen, HRe-ketel ’23, airco ’23, HR++-beglazing, geïsoleerd)
- Gehele woning voorzien van domotica (app-bediening)
- Royale woon- en eetkamer met een open verbinding naar de keuken
- Overdekt terras en tuinkamer die in elk seizoen comfort en sfeer bieden
- Tuin met vijverpartij en jeu-de-boulesbaan met royale pergola en een tuinhuis
- Drie extra slaapkamers en een tweede badkamer op de verdieping
2e Maasveldstraat 16 is geen huis dat je alleen bekijkt: het is een huis dat je beleeft. Warm, verrassend en klaar voor nieuwe verhalen!
Indeling
Kelder:
De woning beschikt over een praktische, droge kelder (ca. 12m2) met stahoogte en meterkast.
Begane grond met tuin:
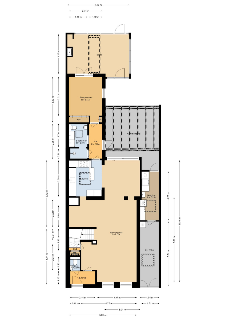
De royale woon- en eetkamer (ca. 40m2) vormt het hart van de woning: licht, uitnodigend en harmonieus verbonden met de open keuken (ca. 9m2 en voorzien van een Velux dakvenster, ‘Boretti’ gasfornuis met Tepan Yaki plaat en 2 ovens, vaatwasser, koelkast en afzuigkap), waar koken en samenkomen moeiteloos in elkaar overlopen. Vanuit hier wandel je zo door naar het overdekte terras (ca. 23m2) en de tuinkamer (ca. 18m2), plekken die elk seizoen een eigen charme hebben. De tuin zelf is een kleine oase, compleet met een sierlijke vijverpartij en zelfs een jeu-de-boulesbaan met royale pergola voorzien van een écht in hoogte verstelbare zogenoemde ‘Bertolli’-tafel. Hier beleef je met een groot gezelschap van heerlijke zomeravonden, in een ambiance die je moeiteloos aan Frankrijk doet denken.
Het houten tuinhuis biedt volop mogelijkheden: atelier, hobbyruimte, buitenkantoor of extra opslag. Achter dit tuinhuis is er nog een overkapping met tuin-/hobbytafel en ca. 12m2 bergruimte. Daarnaast beschikt de woning over een praktische berging (ruimte voor een motor/scootmobiel) en een overdekte vrije achterom (verwarmde huidige bijkeuken van totaal ca. 15m2) met lichtkoepels en witgoedopstelling) die je rechtstreeks vanuit de tuin naar de voorkant van het huis leidt.
Deze woning heeft daarnaast een groot pluspunt: ze is levensloopbestendig! Met een slaapkamer (ca. 11m2) en badkamer (‘21/’22) op de begane grond is comfortabel en toekomstbestendig wonen gegarandeerd. De badkamer (ca. 4,5m2) wordt geventileerd middels een lichtkoepel, is rolstoeltoegankelijk en biedt ruimte aan een inloopdouche, wastafel met meubel, toilet en urinoir. Op de verdieping wachten nog drie slaapkamers én een tweede badkamer, ideaal voor een groter gezin, logees of een werk-/hobbyruimte.
Verdieping:
Hier bevinden zich drie comfortabele slaapkamers (ca. 11m2, ca. 10,5m2 en ca. 6m2), waarvan de kleinste is voorzien van een dakkapel die niet alleen extra licht binnenbrengt, maar ook zorgt voor een extra gevoel van ruimte.
De tweede badkamer (ca. 5m2) werd in 2022–2023 volledig opgeknapt en straalt landelijke luxe uit. De combinatie van een douche-/ligbad met extra lage instap maakt deze ruimte geschikt voor elke levensfase. Daarnaast vind je hier een toilet en een stijlvolle wastafel. DE gehele verdieping is voorzien van rolluiken en jaloezieën.
Vliering:
Daarnaast beschikt de woning over een praktische vliering (ca. 20,5m2), bereikbaar via een luik/mangat, die extra bergruimte biedt voor spullen die je niet dagelijks nodig hebt.
Ligging & omgeving:
De 2e Maasveldstraat 16 is gelegen in het centrum van Blerick nabij het ‘Lambertusplein’, een wijk die de balans biedt tussen wonen in alle rust en toch nabij stedelijke voorzieningen. De straat zelf kenmerkt zich door een vriendelijke en veilige sfeer, met voldoende parkeergelegenheid en een prettig contact met de buren. Voor dagelijks gemak zijn winkels, scholen, station, bushaltes en andersoortige voorzieningen op loopafstand bereikbaar. Liefhebbers van natuur en ontspanning kunnen hun hart ophalen in de nabijgelegen parken en langs de Maas, waar wandel- en fietsroutes voor ontspanning en recreatie zorgen. De centrale ligging maakt dat de binnenstad van Venlo, evenals de snelwegen richting Duitsland, eenvoudig en snel te bereiken zijn.
| Adres: | 2e Maasveldstraat 16 Venlo |
| Vraagprijs: | € 469.000 k.k. |
| Type: | Eengezinswoning |
| Beschikbaar vanaf: | In overleg |
| Ligging: | In woonwijk, Aan rustige weg |
| Perceeloppervlakte: | 336 m² |
| Totale woonoppervlakte: | 123 m² |
| Type constructie: | Traditioneel |
| Bouwjaar: | 1915 |
| Inhoud: | 539 m³ |
| Bouwlagen: | 4 |
| Overige inpandige ruimte: | 28 m² |
| Gebouwgebonden buitenruimte: | 22 m² |
| Externe Bergruimte : | 45 m² |
| Algemene staat: | Direct te aanvaarden |
| Kad. gemeente: | Venlo |
| Oppervlakte: | 336 m² |
| Kamers: | 5 |
| Slaapkamers: | 4 |
| Badkamers: | 2 |
| WC: | 3 |
| Woonkamer: | 30 m² |
| Keuken: | 9 m², Open keuken, Ingericht met inbouwapparatuur |
| Bijkeuken: | 6 m² |
| Berging: | 9 m² |
| Kelder: | 12 m² |
| Serre: | 18 m² |
| Tuin: | 200 m² |
| Tuin breedte: | 8 m |
| Tuin diepte: | 25 m |
| Tuin oriëntatie: | Zuid-Oost |
| Tuin kwaliteit: | Verzorgd |
| Comfort: | Tuin |
| Snelweg: | Ja - op 2000 m tot 3000 m |
| Treinstation: | Ja - op minder dan 500 m |
| Busknooppunt: | Ja - op minder dan 500 m |
| Bushalte: | Ja - op minder dan 500 m |
| Winkel: | Ja - op 500 m tot 1000 m |
| School: | Ja - op 500 m tot 1000 m |
| Kinderopvang: | Ja - op 500 m tot 1000 m |
| Bank: | Ja - op 500 m tot 1000 m |
| Ontspanning: | Ja - op 500 m tot 1000 m |
| Restaurant: | Ja - op 500 m tot 1000 m |
| Raamwerk: | Hardhout, Kunststof, Aluminium |
| Beglazing: | Dubbel, Hoogrendementsglas |
| Verwarming: | CV-ketel, Airconditioning, Open haard |
| Verwarming bouwjaar: | 2023 |
| Verwarmd water: | CV-Ketel |
| Isolatie: | Volledig geïsoleerd |
| Airco: | Ja |
| Internet: | Ja |
| Rolluiken: | Ja |
| Zonnewering: | Ja |
| Kabel: | Ja |
| Zonnepanelen: | Ja - 10 |
| Domotica: | Ja |
| Energielabel: | A |
| Geldig tot: | 11-4-2034 |