Te huur : Ganzeweide 175 te Heerlen |
|
Op zoek naar flexibele en functionele bedrijfsruimte op een goed bereikbare locatie? Op het bedrijventerrein aan de Ganzeweide vindt u een gevarieerd aanbod aan opslagboxen en loodsen, geschikt voor uiteenlopende bedrijfsactiviteiten.
Van kleine opslagunits tot ruime bedrijfsruimtes – dit terrein biedt volop mogelijkheden voor ondernemers die willen groeien of efficiënt willen opereren.
Beschikbaarheid
- Ganzeweide 175B 350 m²
- Ganzeweide 175B 50 m²
- Ganzeweide opslagboxen 8 - 12m²
Bestemming
Hoofdbestemming: Bedrijfsruimte, storage
Omgeving
Het bedrijventerrein is gelegen in een dynamische en ondernemende omgeving, omringd door uiteenlopende bedrijven uit sectoren zoals logistiek, handel en ambacht. Dankzij de ligging nabij belangrijke uitvalswegen en voorzieningen is dit terrein een aantrekkelijke uitvalsbasis voor zowel lokale ondernemers als bedrijven met een regionale functie.
Algemeen
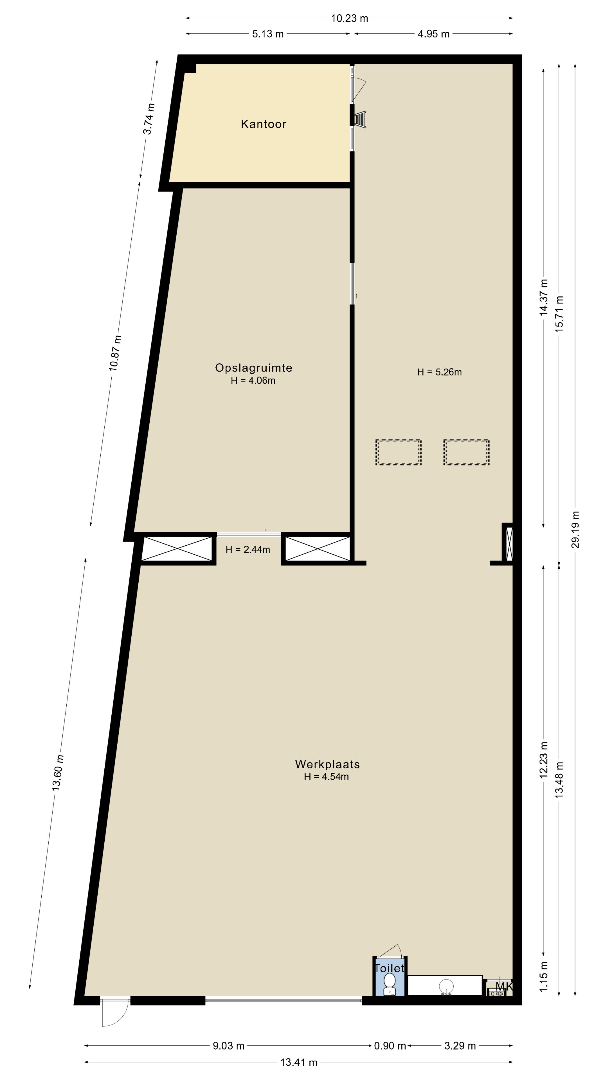
Het terrein bestaat uit drie afzonderlijke delen in totaal 88 bedrijfsruimtes, voorzien van diverse afmetingen.
Het geheel is omheind en biedt een veilige, representatieve uitstraling. De ruimtes zijn multifunctioneel inzetbaar, onder andere voor opslag, productie, werkplaats of distributie.
Bestemming
Conform het vigerende bestemmingsplan is het terrein bestemd voor bedrijven tot en met categorie 3.2 van de Staat van Bedrijfsactiviteiten. Dit maakt het terrein geschikt voor een breed scala aan bedrijfsactiviteiten.
Oppervlakten
- Opslagruimte: van ca. 8 m² tot ca. 12 m²
- Bedrijfsruimtes: van ca. 50 m² tot ca. 800 m²
De units kunnen afzonderlijk of in combinatie gehuurd worden.
Object
De bedrijfsruimtes zijn voorzien van een eigen entree, betonvloer, elektra-aansluitingen en optioneel sanitair. Sommige units beschikken over een eigen kantoorruimte. De opslagboxen zijn ideaal voor zzp’ers, kleine ondernemers of particulieren met behoefte aan extra ruimte.
Bereikbaarheid
Auto
Het object heeft een goede aansluiting ten aanzien van de A76 / A4 Antwerpen- Maastricht-Köln en er is een busverbinding aanwezig naar de centrale stations van Heerlen en Aken. Maastricht-Aachen Airport ligt op 30 km afstand en de luchthavens van Brussel, Düsseldorf en Köln zijn binnen 60 autominuten te bereiken.
Openbaar vervoer
Het object is op ca. 100 meter loopafstand gelegen.
Parkeren
Op eigen terrein is voldoende parkeergelegenheid voorhanden.
Huuruitgangspunten
Huurprijzen zijn op aanvraag en afhankelijk van de gewenste ruimte, looptijd en voorzieningen. Er zijn maatwerkoplossingen mogelijk om aan te sluiten bij uw wensen.
Servicekosten
Servicekosten worden nader vastgesteld op basis van de gehuurde ruimte en de bijbehorende voorzieningen.
Huurtermijn
In overleg. Flexibele huurtermijnen zijn bespreekbaar, zowel kort- als langlopende overeenkomsten zijn mogelijk.
Opleveringsniveau
De ruimten worden in de huidige staat opgeleverd (casco), voorzien van basisinstallaties. In overleg kunnen aanpassingen of uitbreidingen gerealiseerd worden.
| Adres: | Ganzeweide 175 Heerlen |
| Prijs: | Op aanvraag |
| Type: | Hangar (Loods) |
| Beschikbaar vanaf: | In overleg |
| Bouwjaar: | 1967 |
| Algemene staat: | Direct te aanvaarden |
| Verhuurbare vloeroppervlakte: | 1 000 m² |
| Kad. gemeente: | Heerlen, Heerlen, Heerlen, Heerlen, Heerlen, Heerlen, Heerlen, Heerlen, Heerlen, Heerlen, Heerlen, Heerlen |
| Oppervlakte: | 5.810 m², 5.182 m², 559 m², 390 m², 2.212 m², 673 m², 528 m², 796 m², 509 m², 670 m², 335 m², 520 m² |
| Opslagruimte: | Ja |
| Showroom: | Ja |
| Kantine: | Ja |
| Productieruimte: | Ja |
Bedrijfshal: | |
| Oppervlakte: | 1 000 m² |
| In units vanaf: | 8 m² |
| Voorzieningen: | Overheaddeuren |
| Snelweg: | Ja - op 500 m tot 1000 m |
| Treinstation: | Ja - op 4000 m tot 5000 m |
| Busknooppunt: | Ja - op 4000 m tot 5000 m |
| Bushalte: | Ja - op minder dan 500 m |
| Winkel: | Ja - op minder dan 500 m |
| School: | Ja - op minder dan 500 m |
| Kinderopvang: | Ja - op minder dan 500 m |
| Bank: | Ja - op minder dan 500 m |
| (Stads)centrum: | Ja - op minder dan 500 m |
| Ontspanning: | Ja - op minder dan 500 m |
| Restaurant: | Ja - op minder dan 500 m |
| Raamwerk: | Hardhout, Kunststof |
| Dak: | Plat dak |
| Isolatie: | Dakisolatie |
| Alarm: | Ja |