Te huur : Meerstraat 50 te Bunde |
Prijs vanaf: €900/maand |
Kenmerken
Algemeen
Wij bieden u de mogelijkheid tot het huren van een bedrijfshal met kantoorruimte en verhard buitenterrein die ideaal geschikt is voor logistieke doeleinden.
Huuruitgangspunten
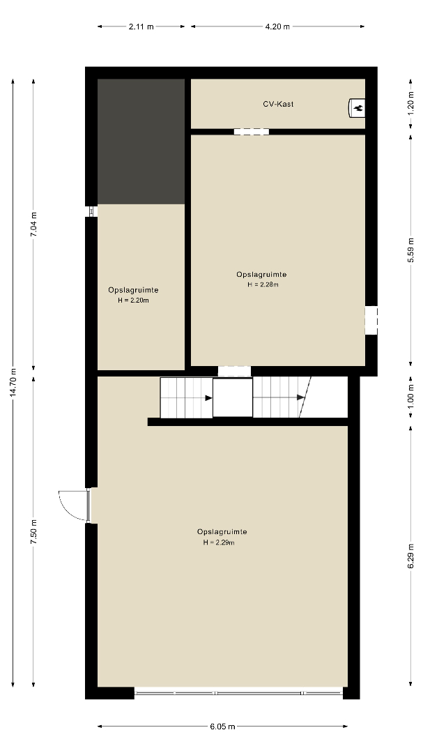
• Bedrijfsruimte van ca. 270 m² / €2500,- excl BTW;
• Bedrijfsruimte van ca. 111 m² / €900,- excl BTW;
• Bedrijfsruimte van ca. 159 m² / €1500,- excl BTW.
(Te huur compleet of gesplitst)
Bestemming
Hoofdbestemming: Bedrijfshal, kantoorruimtes, verhard buitenterrein
Object:
Het object betreft een bedrijfshal met kantoorruimtes en verhard buitenterrein
Kantoorruimtes: Circa 250 m²
Bedrijfshal: Circa 150 m²
Perceel: 6.083 m²
Ontwerp / indeling
Bedrijfshal
De bedrijfshal omvat circa 150 m² VVO op begane grond. De inpandige hoogte van de hal bedraagt circa 5 m.
Bestemming/bedrijfsdoeleinden:
Er geldt een 'gemengde bedrijfsdoeleinden/ kantoorbestemming' met de functieaanduiding bedrijven van categorie 3.1, 3.2, en 4.1 voor deze locatie. Dit betekent dat alle bedrijven van categorie 3.1, 3.2 en 4.1 zijn toegestaan. Voor alle uitgebreide bestemmingsmogelijkheden, verwijzen wij u door naar de website van ruimtelijke plannen.
Bereikbaarheid:
Auto
Bunde is gelegen te noorden van Maastricht en maakt onderdeel uit van de gemeente Meerssen. Het object is gelegen langs de doorgaande verbindingsweg tussen de kern Bunde en het bedrijventerrein Beatrixhaven, een van de grootste bedrijventerreinen in Zuid-Limburg.
Tevens is de aansluiting op de autosnelwegen A2 en A79 in de nabijheid gelegen.
Parkeren
Op de openbare weg is voldoende parkeergelegenheid.
Betalingswijze
Betaling door huurder aan verhuurder geschiedt per maand vooruit. Voor of uiterlijk op de eerste dag van iedere betalingsperiode dient de betalingsverplichting van huurder aan verhuurder te zijn voldaan.
Huurtermijn
In overleg.
Servicekosten
In overleg.
Beschikbaarheid
Per direct beschikbaar.
Opzegtermijn
In overleg
Huurindexering
Indexering van de huurprijs geschiedt jaarlijks voor het eerst 1 jaar naar huuringang op basis van de wijziging van het prijsindexcijfer volgens de consumentenprijsindex (CPI) reeks CPI-Alle Huishoudens (2006-100), gepubliceerd door het Centraal Bureau voor de Statistiek (CBS).
Zekerheidsstelling
Huurder dient voor of uiterlijk op de huuringangsdatum een bankgarantie (conform model ROZ) ter grootte van minimaal 2 maanden huurpenningen, servicekosten alsmede de hierover verschuldigde omzetbelasting te hebben gesteld. Indien partijen samen overeenkomen dat hiervoor in de plaats een waarborgsom gestort mag worden, dient deze gestort te zijn voorafgaand aan de ingebruikname van het object.
Omzetbelasting
Huurder is over de huurpenningen alsmede de servicekosten omzetbelasting verschuldigd. Ingeval huurder niet aan de gestelde criteria voor belaste verhuur voldoet, wordt de huurprijs verhoogd ter compensatie van de gevolgen van het vervallen van de mogelijkheid om te opteren voor BTW belaste huur.
Huurovereenkomst
Standaardmodel ROZ (Raad voor Onroerende Zaken) met bijbehorende algemene bepalingen.
| Adres: | Meerstraat 50 Bunde |
| Prijs: | € 900/maand |
| Type: | Hangar (Loods) |
| Beschikbaar vanaf: | Per direct |
| Ligging: | Residentieel |
| Perceelbreedte: | 6085 m |
| Bouwjaar: | 1965 |
| Algemene staat: | Normaal |
| Kad. gemeente: | Bunde |
| Oppervlakte: | 6.085 m² |
| Opslagruimte: | Ja |
| Showroom: | Ja |
| Kantine: | Ja |
| Productieruimte: | Ja |
Bedrijfshal: | |
| Oppervlakte: | 250 m² |
Bedrijfsruimte - kantoorruimte: | |
| Oppervlakte: | 250 m² |
Terrein: | |
| Oppervlakte: | 6 085 m² |
| Snelweg: | Ja - op minder dan 500 m |
| Treinstation: | Ja - op 1000 m tot 1500 m |
| Treinhalte: | Ja - op 1000 m tot 1500 m |
| Busknooppunt: | Ja - op minder dan 500 m |
| Bushalte: | Ja - op minder dan 500 m |
| Winkel: | Ja - op minder dan 500 m |
| School: | Ja - op minder dan 500 m |
| (Stads)centrum: | Ja - op 1000 m tot 1500 m |
| Energielabel: | E |
| Geldig tot: | 11-11-2032 |