Te huur : Dr. Nolenslaan 157 te Sittard |
Vraagprijs: €260/maand |
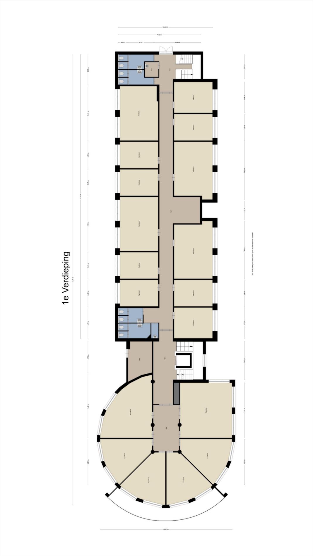
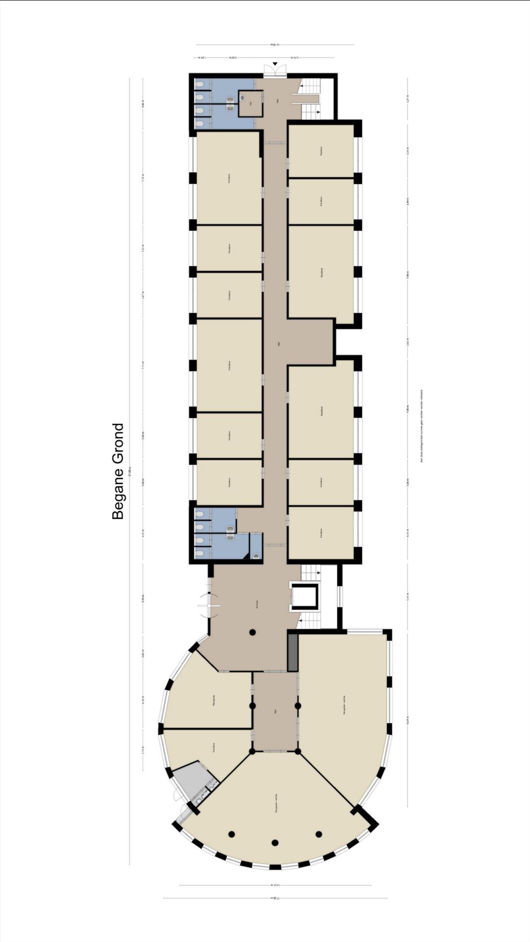
Business Center Sittard is een kleinschalig en goed verzorgd business center met 39 kantoren in Industriepark-Noord. Als huurder profiteer je van een aantal aantrekkelijke faciliteiten, zoals het gebruik van de aangename vergaderruimtes. De receptioniste ontvangt jouw gasten en zorgt voor verzending van jouw post.
Kenmerken
Algemeen
Wij bieden u de mogelijkheid tot het huren van kantoorruimte binnen dit unieke object op basis van uw wensen. Zo is er kantoorruimte te huur vanaf 17 m². Dus wil je een kantoor huren in Sittard? Bij ons zijn verschillende huurmogelijkheden.
Bestemming
Hoofdbestemming: Kantoorruimte
Oppervlakten
Perceeloppervlakte: 10.485 m²
Totale oppervlakte: 5.158 m²
Te huur: Kantoorruimte vanaf 17 m².
Te huur: Bedrijfsruimte 150 m² met 50 m² kantoorruimte.
Beschikbaar
Diverse kantoorruimtes vanaf 17 m².
Bedrijfsruimte te huur 150 m² en 50 m² kantoor
Object
Het object betreft 39 kantoorruimtes. De kantoren zijn verdeeld over een tweetal verdiepingen.
Bereikbaarheid
Auto
Het Business Center is uitstekend te bereiken met het eigen vervoer. Vanaf de locatie bent u binnen enkele autominuten via de N276 en de N294 op de rijksweg A2.
Openbaar vervoer
Het object is op ca. 1,5 km loopafstand gelegen van de bushalte Millenerweg te Sittard, welke in directe verbinding staat met het NS-Station Sittard, welke op circa 1,9 km van het object op is gelegen.
Parkeren
Op eigen terrein is voldoende parkeergelegenheid voorhanden.
Huuruitgangspunten
Huurprijs per maand
Huurprijzen vanaf € 260,00 per maand exclusief btw op basis van een kantoorruimte met een oppervlakte van 17 m².
Huurprijs bedrijfsruimte en kantoorruimte € 1.250,00 per maand exclusief btw.
Servicekosten
De servicekosten zijn bij de huurprijs inbegrepen, waardoor u nooit een afrekening ontvangt op het einde van het jaar.
Huurtermijn
In overleg bespreekbaar.
Beschikbaarheid
Per direct
| Adres: | Dr. Nolenslaan 157 Sittard |
| Prijs: | € 260/maand |
| Type: | Commercieel kantoor |
| Beschikbaar vanaf: | Per direct |
| Ligging: | Bedrijventerrein, Kantorenpark |
| Bouwjaar: | 1995 |
| Bouwlagen: | 4 |
| Algemene staat: | Direct te aanvaarden |
| Verhuurbare vloeroppervlakte: | 5 026 m² |
| Kad. gemeente: | Sittard |
| Oppervlakte: | 10.485 m² |
| Kantine: | Ja |
| Gestoffeerd: | Gedeeltelijk |
| Snelweg: | Ja - op 1500 m tot 2000 m |
| Treinstation: | Ja - op 2000 m tot 3000 m |
| Busknooppunt: | Ja - op 2000 m tot 3000 m |
| Bushalte: | Ja - op 500 m tot 1000 m |
| Winkel: | Ja - op 3000 m tot 4000 m |
| (Stads)centrum: | Ja - op 3000 m tot 4000 m |
| Raamwerk: | Kunststof |
| Beglazing: | Dubbel |
| Alarm: | Ja |
| Lift: | Ja |
| Mech. ventilatie : | Ja |
| Energielabel: | D |
| Geldig tot: | 21-12-2030 |