Verhuurd : Noordhoven 19 te Roermond |
Vraagprijs: €115 |
Kenmerken
Algemeen
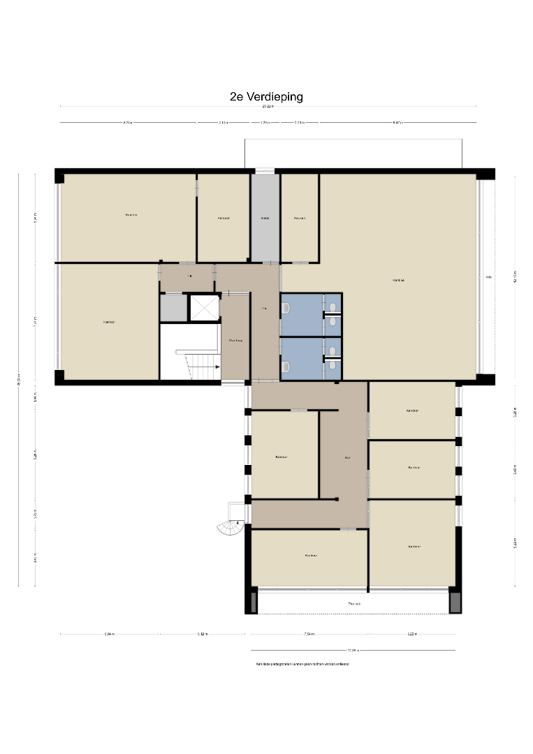
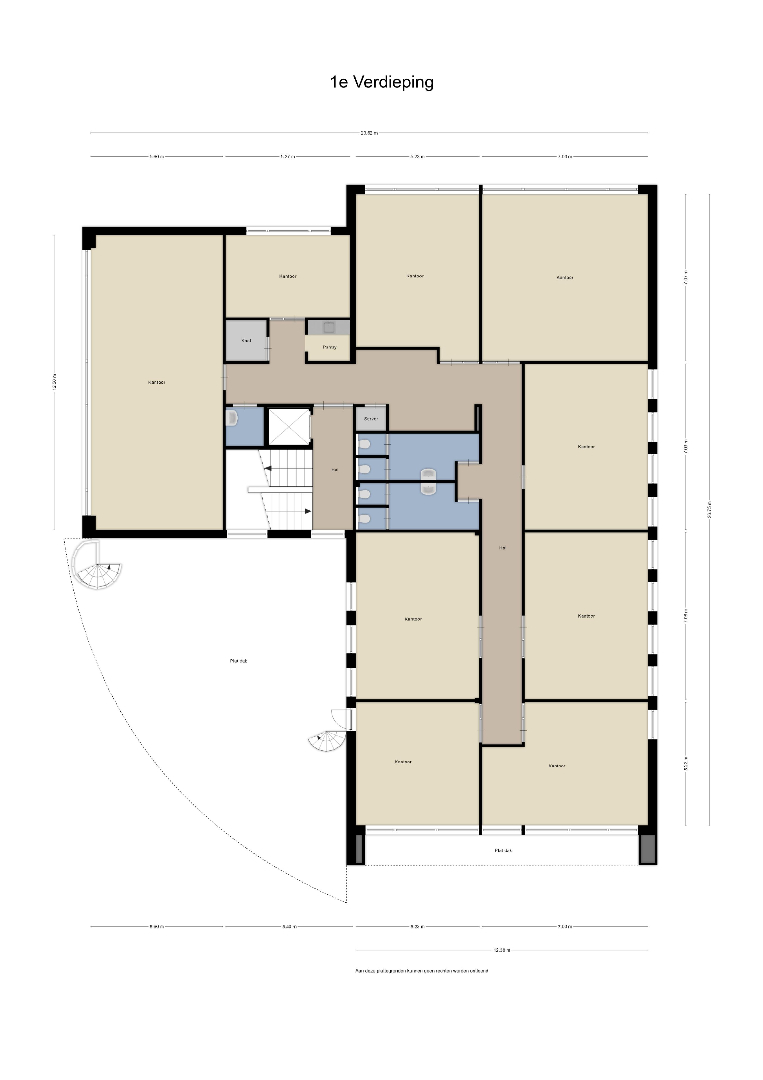
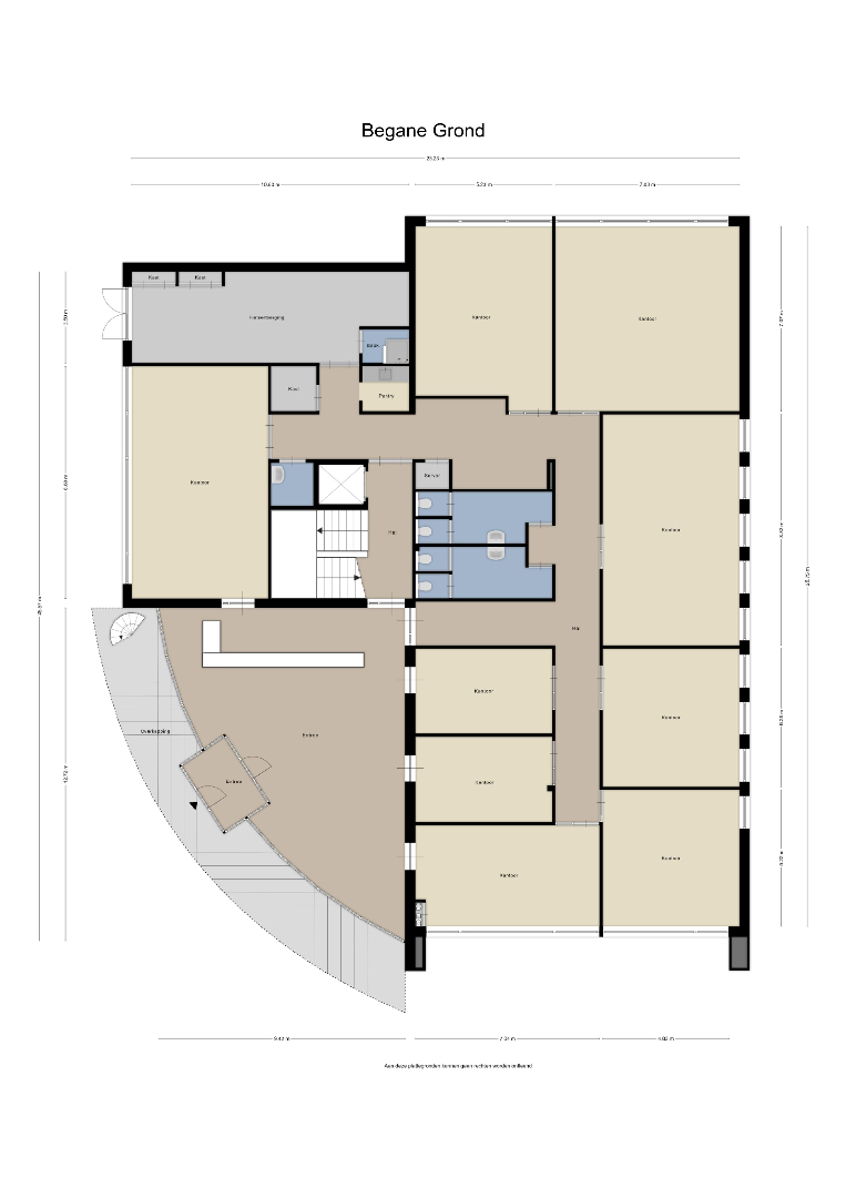
Het betreft een jong en modern kantoorgebouw dat is gerealiseerd in 2001 en bestaat uit 3 bouwlagen. Het gebouw is opgetrokken uit een betonconstructie met betonvloeren waarbij de gevels deels zijn optrokken uit metselwerk en deels uit een metalen gevelbekleding. Verder is het gebouw voorzien van aluminium kozijnen met dubbele beglazing. Het kantoor beschikt op de begane grond o.a. over een grote ontvangsthal met baliefunctie en diverse kantoorruimten. De kantoren zijn voorzien van systeemplafonds met armaturen, luchtbehandeling met topkoeling en scheidingswanden. Op de tweede verdieping bevindt zich een moderne kantine met een grote, opvallende glazen pui welke een mooi uitzicht biedt. Iedere verdieping heeft de beschikking over toiletvoorzieningen en een pantry.
Beschikbaar: in overleg.
Bestemming
Hoofdbestemming: Kantoorruimte
Oppervlakten
Perceeloppervlakte: 3.362 m²
Totale oppervlakte: 1.430 m²
Te huur: Partiële huur en afname afwijkende metrages is bespreekbaar. Kantoren vanaf 20 m² beschikbaar!
Object
Het geheel omvat 20 kantoorkamers, in grootte variëren van circa 20 m2 tot circa 265 m2, die alle zijn voorzien van airco-units. De binnenwanden zijn uitgevoerd in een combinatie van metselwerk met systeemwanden, waarbij die laatste deels flexibel verplaatsbaar zijn waardoor individuele indelingen tot de mogelijkheden behoren.
Bereikbaarheid
Auto
Het object ligt op korte afstand van de toe- en afritten naar de A73 van waaruit u een uitstekende verbinding heeft naar Nijmegen en Maastricht (A73).
Openbaar vervoer
Het object op is ca. 350 meter loopafstand gelegen van de bushalte Jagerstraat, welke in directe verbinding staat met het NS-station Roermond, welke op circa 2.5 km van het object op is gelegen.
Parkeren
Het buitenterrein is rondom voorzien van goed onderhouden groenaanleg en heeft aan de voor- en achterzijde een bestrating van betonklinkers. Aan de voorzijde bevinden zich 6 parkeerplaatsen, aan de achterzijde liggen 26 parkeerplaatsen. Een overdekte fietsenstalling met aanliggende rookruimte zijn eveneens aanwezig.
Huuruitgangspunten
Huurprijs per jaar
– De huurprijs bedraagt ca. € 115,00 per m² per jaar, exclusief btw.
Servicekosten
Servicekosten (waaronder g/w/e, internet & algemene onderhoudskosten) zijn niet de huurprijs inbegrepen. Deze bedragen € 35,00 per m² per jaar, exclusief btw.
Huurtermijn
In overleg bespreekbaar.
Beschikbaarheid
In overleg, doch op korte termijn
| Adres: | Noordhoven 19 Roermond |
| Prijs: | Verhuurd |
| Type: | Commercieel kantoor |
| Beschikbaar vanaf: | Per direct |
| Ligging: | Bedrijventerrein |
| Bouwjaar: | 2001 |
| Bouwlagen: | 4 |
| Algemene staat: | Direct te aanvaarden |
| Verhuurbare vloeroppervlakte: | 1 687 m² |
| Kad. gemeente: | Roermond |
| Oppervlakte: | 3.362 m² |
| Kantine: | Ja |
| Gestoffeerd: | Gedeeltelijk |
| Snelweg: | Ja - op 500 m tot 1000 m |
| Treinstation: | Ja - op 3000 m tot 4000 m |
| Busknooppunt: | Ja - op 3000 m tot 4000 m |
| Bushalte: | Ja - op 500 m tot 1000 m |
| Winkel: | Ja - op 3000 m tot 4000 m |
| School: | Ja - op 2000 m tot 3000 m |
| Bank: | Ja - op 4000 m tot 5000 m |
| (Stads)centrum: | Ja - op 3000 m tot 4000 m |
| Ontspanning: | Ja - op 1000 m tot 1500 m |
| Restaurant: | Ja - op 3000 m tot 4000 m |
| Raamwerk: | Kunststof |
| Dak: | Plat dak met bitumineuze dakbedekking |
| Beglazing: | Dubbel |
| Alarm: | Ja |
| Lift: | Ja |
| Mech. ventilatie : | Ja |
| Energielabel: | A |
| Geldig tot: | 24-5-2028 |