Te huur : Frans Erensstraat 8 te Venlo |
Vraagprijs: €1.085/maand |
Omschrijving
Functionele en praktisch ingedeelde bedrijfsruimte, gelegen aan de Frans Erensstraat 8 te Venlo (Blerick). Het object beschikt over een combinatie van werkplaats-, opslag- en kantoorruimte en is geschikt voor uiteenlopende bedrijfsactiviteiten zoals opslag, lichte productie, montage of werkplaatsgebruik. De ruimte is volledig gesitueerd op de begane grond en heeft een industriële en robuuste uitstraling.
De bedrijfsruimte is gebouwd in 1960 en maakt deel uit van aaneengesloten bedrijfsbebouwing in een sterk stedelijke omgeving. Dankzij de efficiënte indeling, goede bereikbaarheid en aanwezige voorzieningen is dit object geschikt voor ondernemers die op zoek zijn naar een praktische bedrijfsruimte met een goede prijs-kwaliteitverhouding.
Kenmerken
Algemeen
De Frans Erensstraat is gelegen in een stedelijk bedrijfsgebied met een mix van bedrijfsruimten en voorzieningen. De omgeving kenmerkt zich door een functioneel karakter en een goede aansluiting op de stedelijke infrastructuur van Venlo. De bedrijfsruimte beschikt over een overheaddeur aan de straatzijde, wat laden en lossen direct vanaf de openbare weg mogelijk maakt.
Indeling en gebruik
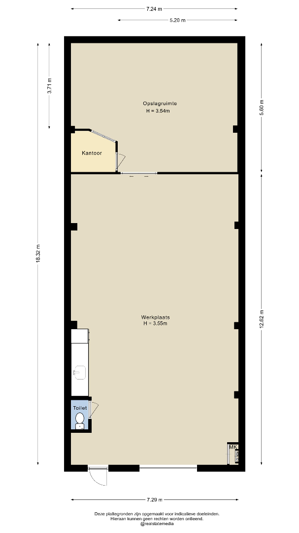
De bedrijfsruimte bestaat uit een ruime werkplaats aan de voorzijde met een vrije hoogte van circa 3,55 meter. Aansluitend bevindt zich een opslagruimte met een vrije hoogte van circa 3,54 meter. Tussen de werkplaats en opslagruimte is een interne scheidingswand met doorgang aanwezig. Daarnaast is een separate kantoorruimte gerealiseerd, geschikt voor administratieve werkzaamheden.
Verder is de ruimte voorzien van een pantry met werkblad en spoelbak, alsmede een separate toiletruimte. De vloer is uitgevoerd in beton en de ruimte is voorzien van functionele verlichting. De constructie bestaat uit betonnen wanden in combinatie met houten dakspanten, hetgeen bijdraagt aan de industriële uitstraling.
Oppervlakte
Het bruto vloeroppervlak bedraagt circa 146 m2.
Het verhuurbaar vloeroppervlak bedraagt circa 131 m2 v.v.o., bestaande uit circa 93 m² bedrijfs-/werkruimte en circa 38 m2 facilitaire ruimte (waaronder kantoor en sanitaire voorzieningen).
Ligging
De locatie is gunstig gelegen ten opzichte van het centrum van Blerick en dagelijkse voorzieningen. Een supermarkt en huisartsenpraktijk bevinden zich op circa 0,3 km afstand. Het treinstation is gelegen op circa 0,9 km en de dichtstbijzijnde oprit van de hoofdweg op circa 1,2 km afstand.
Bereikbaarheid
De bedrijfsruimte is goed bereikbaar per auto en geschikt voor bestelwagens. Openbaar vervoer is beschikbaar op korte loopafstand met een bushalte op circa 0,2 km. Parkeren is mogelijk in de directe omgeving van het object.
Huuruitgangspunten
Huurprijs
De huurprijs voor de bedrijfsruimte bedraagt € 100,00 per m2 per jaar, te vermeerderen met btw..
Servicekosten
Niet van toepassing.
Levering en diensten
Huurder is zelf verantwoordelijk voor het afsluiten en beheren van de nutsvoorzieningen, waaronder gas, water en elektriciteit.
Huurtermijn
Minimaal 1 jaar
Opzegtermijn
Drie (3) maanden voorafgaand aan de expiratiedatum.
Beschikbaarheid
In overleg.
Opleveringsniveau
In de huidige staat, derhalve as-is.
| Adres: | Frans Erensstraat 8 Venlo |
| Prijs: | € 1.085/maand |
| Type: | Bedrijfsruimte |
| Beschikbaar vanaf: | In overleg |
| Ligging: | Gemeente |
| Bouwjaar: | 1960 |
| Inhoud: | 618 m³ |
| Algemene staat: | Normaal |
| Verhuurbare vloeroppervlakte: | 131 m² |
| Kad. gemeente: | Venlo |
| Opslagruimte: | 37 m² |
Bedrijfshal: | |
| Oppervlakte: | 131 m² |
| Vrije hoogte: | 3,55 m |
| Voorzieningen: | Overheaddeuren |
| Snelweg: | Ja - op 4000 m tot 5000 m |
| Treinstation: | Ja - op 1000 m tot 1500 m |
| Treinhalte: | Ja - op 1000 m tot 1500 m |
| Busknooppunt: | Ja - op 2000 m tot 3000 m |
| Bushalte: | Ja - op 1500 m tot 2000 m |
| Winkel: | Ja - op 1000 m tot 1500 m |
| School: | Ja - op 1000 m tot 1500 m |
| Kinderopvang: | Ja - op 1000 m tot 1500 m |
| Bank: | Ja - op 500 m tot 1000 m |
| (Stads)centrum: | Ja - op 1000 m tot 1500 m |
| Ontspanning: | Ja - op 500 m tot 1000 m |
| Restaurant: | Ja - op 1000 m tot 1500 m |
| Dak: | Plat dak |